Назад к поиску
Квартира продана более 1 месяца назад
Эта квартира уже нашла своего нового хозяина. Объявление просмотрели 2 покупателей. Квартира продалась за дней.
Квартира продана
Эта квартира уже нашла своего нового хозяина.

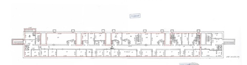
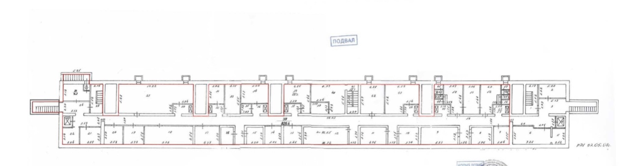
Помещение свободного назначения, 902.7 м²

Россия, Вологда, проспект Победы, 66
На карте
150 000 ₽/мес
Помещение свободного назначения, 902.7 м²
Общая
903 м2
Этаж
Цокольный

Код объекта: 1362423.

Коммерческое помещение свободного назначения в Вологде, проспект Победы, 66.

Предлагается к аренде просторное коммерческое помещение на первом этаже пятиэтажного кирпичного здания. Помещение площадью 902,7 м² расположено в угловой части здания, имеет отдельный вход и свободно доступно для использования. Высота потолков — 2,5 метра, что позволяет эффективно организовать пространство.

Расположение:
Адрес — проспект Победы, один из главных и оживлённых районов Вологды.
Отличная транспортная доступность и удобный подъезд.
Рядом проходит множество маршрутов общественного транспорта, легко добраться до любой точки города.

Помещение идеально подойдёт для бизнеса, требующего просторного и функционального пространства. Здесь можно открыть магазин, офис, медицинский центр или другое предприятие.

Возможна сдача в аренду разными площадями.

Звоните нам прямо сейчас, чтобы узнать больше и договориться о просмотре!

Общая информация
Этаж / Этажность
Цокольный
Общая площадь
903 м2
На карте
Похожие объекты
Мы подобрали варианты, которые могут вам понравиться
По параметрам
Рядом
По цене