Назад к поиску
Квартира продана более 1 месяца назад
Эта квартира уже нашла своего нового хозяина. Объявление просмотрели 0 покупателей. Квартира продалась за дней.
Квартира продана
Эта квартира уже нашла своего нового хозяина.

Дом 9.4 м², участок 9.4 соток

Россия, Вологодский муниципальный округ, деревня Жилино, 4-я улица, 16
На карте
5 100 000 ₽
Дом 9.4 м², участок 9.4 соток
Общая
95 м2

Код объекта: 2004176.

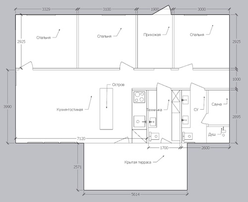
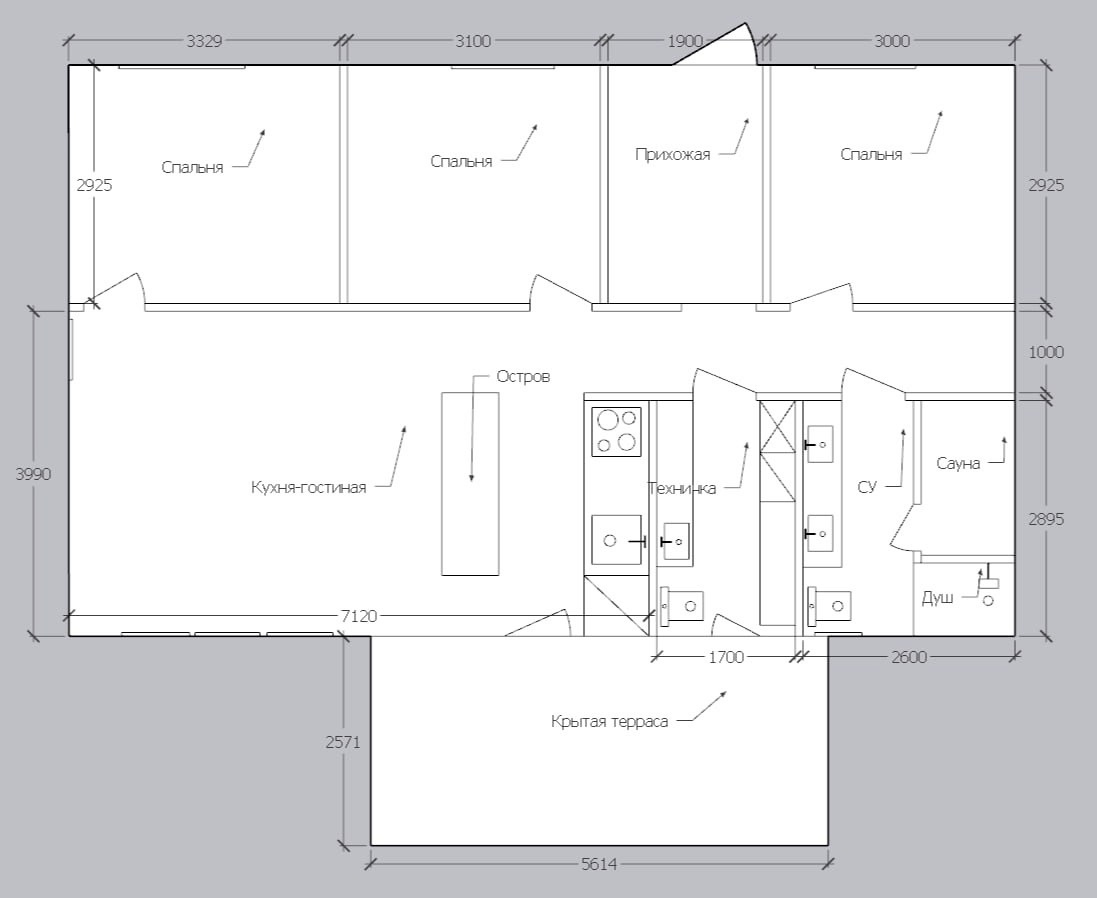
В продаже современный дом площадью 94,7 кв.м. на участке 9,5 соток в 5 минутах езды от города в деревне Жилино.
В доме 3 спальни, просторная кухня-гостиная 28 кв.м, 2 санузла, сауна, большая крытая терраса 15 кв.м.
О доме:

  • фундамент - железобетонные сваи
  • стены - деревянный каркас
  • утепление - минеральная вата по всему периметру дома
  • наружная отделка - металлосайдинг
  • крыша - металлочерепица
  • канализация септик 3-секционный термит на 2 куба,
  • водоснабжение - колодец на 10 колец.
  • отопление - электрическое
  • ровный сухой участок.

Инфраструктура: поселок активно строится и в настоящее время газифицируется. В поселке есть продуктовый магазин, детская площадка. Ходит общественный транспорт до города. Зимой дороги регулярно чистят во всем поселке.
В настоящее время в доме ведутся отделочные работы под ключ, после их окончания цена повысится.
Звоните за подробностями и записывайтесь на показ. Мы гарантируем бструю и безопасную сделку.

Общая информация
Количество комнат
3
Общая площадь
95 м2
Тип постройки
Брус
Год постройки
2025
На карте
Покупаете в ипотеку?
Узнайте ежемесячный платеж в самых надежных банках
Рассчитать ипотеку
Похожие объекты
Мы подобрали варианты, которые могут вам понравиться
По параметрам
Рядом
По цене
+ 13 фото
Дом 11.0 м², участок 11.0 соток Россия, Вологодская область, Сокольский муниципальный округ, деревня Рязанка
6 700 000 ₽
+ 19 фото
Дом 11.0 м², участок 11.0 соток Россия, Вологодский муниципальный округ, посёлок Непотягово, Дмитриевская улица
6 300 000 ₽
+ 3 фото
Дом 13.5 м², участок 13.5 соток Россия, Вологда, садоводческое товарищество ВРЗ-1
7 840 000 ₽
+ 19 фото
Дом 15.0 м², участок 15.0 соток Россия, Вологодская область, Кирилловский муниципальный округ, деревня Кочевино
1 600 000 ₽
+ 17 фото
Дом 16.7 м², участок 16.7 соток Россия, Вологодский муниципальный округ, садоводческое товарищество Подшипник
1 400 000 ₽
+ 39 фото
Дом 21.3 м², участок 21.3 соток Россия, Вологодский муниципальный округ, деревня Еремеево (Лесковский сельсовет)
12 500 000 ₽
+ 26 фото
Дом 7.0 м², участок 7.0 соток Россия, Вологодский муниципальный округ, ДНТ Удачное, Прибрежная улица, 1
5 500 000 ₽