Назад к поиску
Квартира продана более 1 месяца назад
Эта квартира уже нашла своего нового хозяина. Объявление просмотрели 8 покупателей. Квартира продалась за дней.
Квартира продана
Эта квартира уже нашла своего нового хозяина.

Дом 7.0 м², участок 7.0 соток

8 просмотров
Россия, Вологда, улица Гоголя, 114
На карте
26 000 000 ₽
Дом 7.0 м², участок 7.0 соток
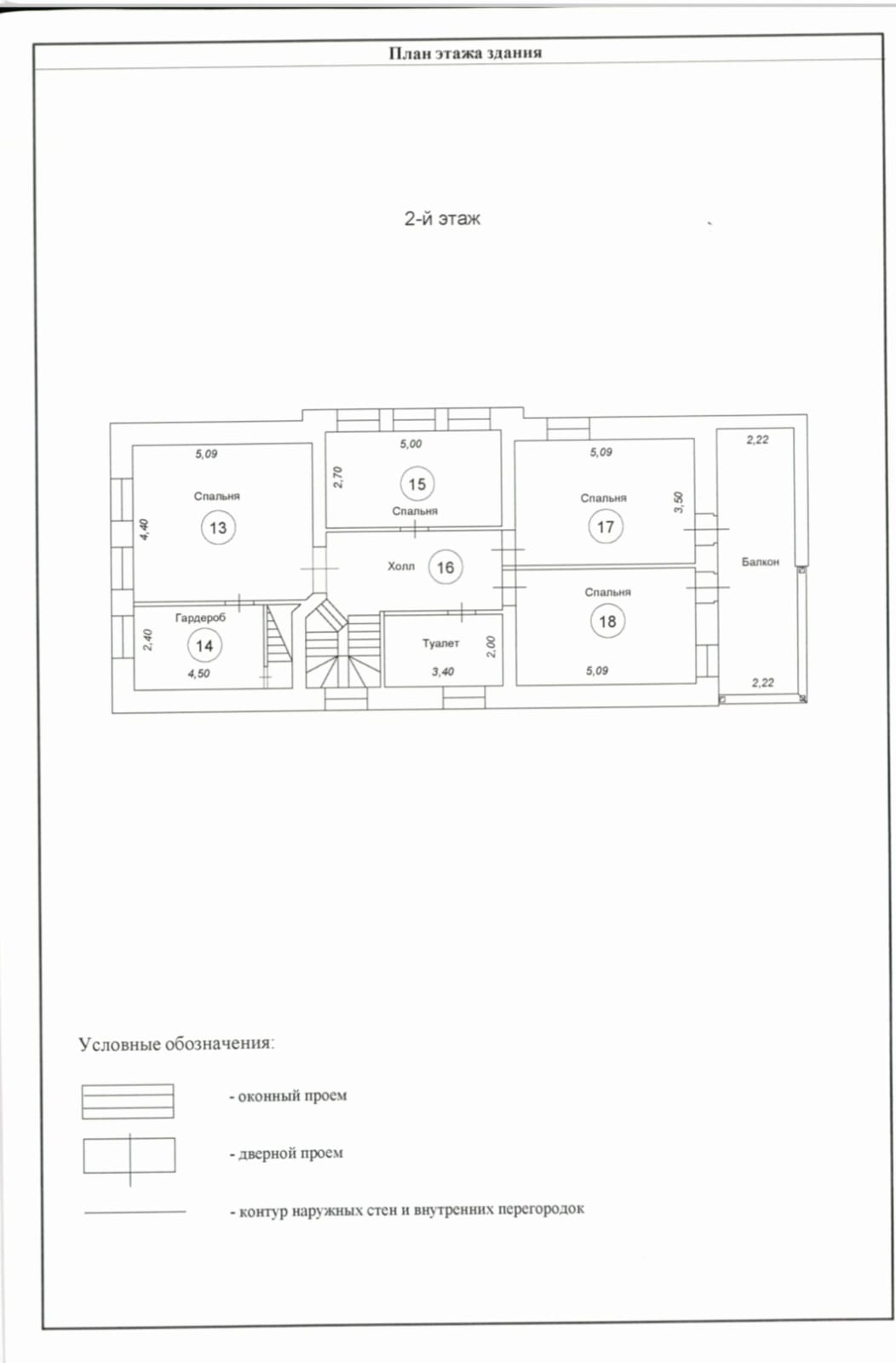
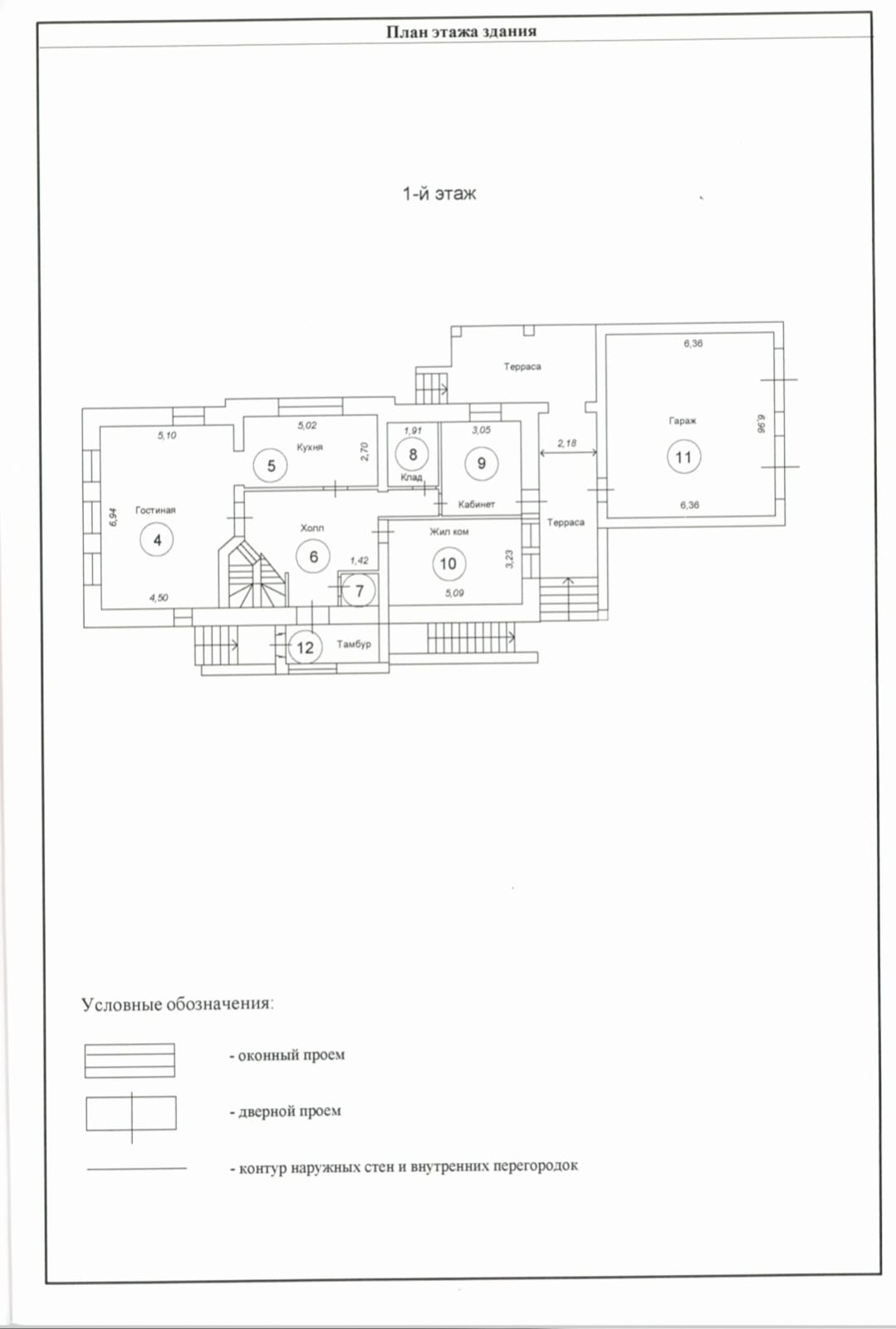
Общая
358 м2

Код объекта: 836444.

В исторической части города, рядом с набережной реки Вологда продается 2х этажный кирпичный дом 2018(год ввода в эксплуатацию). Два этажа площадью 248 м2 и цокольный этаж 110м2. Потолки в доме 3 м. Кроме пяти комнат, есть подсобные помещения, это кладовая, кабинет, гардероб и большая гостиная 34,2 м2. Также к дому пристроен гараж 44 м2. Фундамент- железобетонные блоки, материал перекрытий -железобетонные плиты, крыша металлическая с полимерным покрытием. Дом продается без отделки. Водоснабжение заведено в дом. Электроснабжение -централизованное, Канализация заведена в дом (централизованная). Газоснабжение на фасаде(централизованное). Инфраструктура развита: магазин, Никольская церковь, поликлиника, ресторан. До школы номер 1 или 13 всего 10 минут пешком. Участок ровный, огорожен

Общая информация
Количество комнат
7
Общая площадь
358 м2
Тип постройки
Кирпич
Год постройки
2018
На карте
Покупаете в ипотеку?
Узнайте ежемесячный платеж в самых надежных банках
Рассчитать ипотеку
Похожие объекты
Мы подобрали варианты, которые могут вам понравиться
По параметрам
Рядом
По цене