Назад к поиску
Квартира продана более 1 месяца назад
Эта квартира уже нашла своего нового хозяина. Объявление просмотрели 8 покупателей. Квартира продалась за дней.
Квартира продана
Эта квартира уже нашла своего нового хозяина.

Дом 6.0 м², участок 6.0 соток

8 просмотров
Россия, Вологда, Троицкая улица, 14
На карте
8 950 000 ₽
Дом 6.0 м², участок 6.0 соток
Общая
95 м2

Код объекта: 1641092.

Предлагаем к продаже великолепный дом, расположенный в коттеджном поселке Покровская Слобода в 10-ти минутах от центра города с видом на Спасо-Прилуцкий монатырь.
О доме:
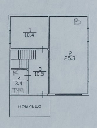
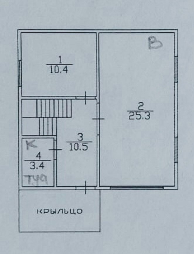
- Площадь дома 95,2 кв.м., 2 этажа, 4 комнаты, 2 санузла.
- просторная и фунциональная планировка, панорамное остекление.
- в доме центральное водоснабжение и канализация, газовое отпление.
- участок 6 соток, ровнй, сухой.
- престижный коттеджный поселок Покровская Слобода, рядом река, Ботанический сад, прекрасный вид на монастырь, живописная дорогая до поселка через Парк Мира.

Звоните за подробностями и записывайтесь на показ!

Общая информация
Количество комнат
4
Общая площадь
95 м2
Тип постройки
Сэндвич-панели
Год постройки
2024
На карте
Покупаете в ипотеку?
Узнайте ежемесячный платеж в самых надежных банках
Рассчитать ипотеку