Назад к поиску
Квартира продана более 1 месяца назад
Эта квартира уже нашла своего нового хозяина. Объявление просмотрели 3 покупателей. Квартира продалась за дней.
Квартира продана
Эта квартира уже нашла своего нового хозяина.

Дом 12.5 м², участок 12.5 соток

Россия, Вологодский муниципальный округ, деревня Нагорье, 1А
На карте
7 900 000 ₽
Дом 12.5 м², участок 12.5 соток
Общая
96 м2

Код объекта: 1694459.

Уютный дом в деревне Нагорье — идеальное место для семейного отдыха и жизни!

Продаётся светлый и просторный дом площадью 96 кв. м. на участке 12,5 соток. Дом построен в 2022 году из газобетонных блоков, кровля — металлочерепица. Подъезд к участку асфальтированный, до дома 200 м грунтовка.

Расположение дома идеально для семей с детьми: тишина и спокойствие деревни, свежий воздух, возможность вырастить сад или огород. При этом до города всего 12 — удобно для работы и развлечений.

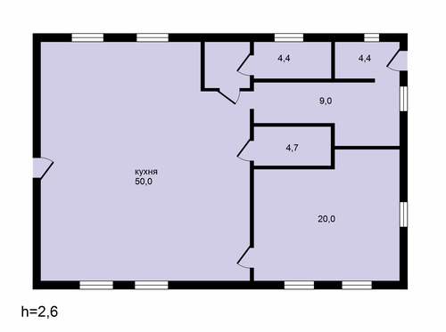
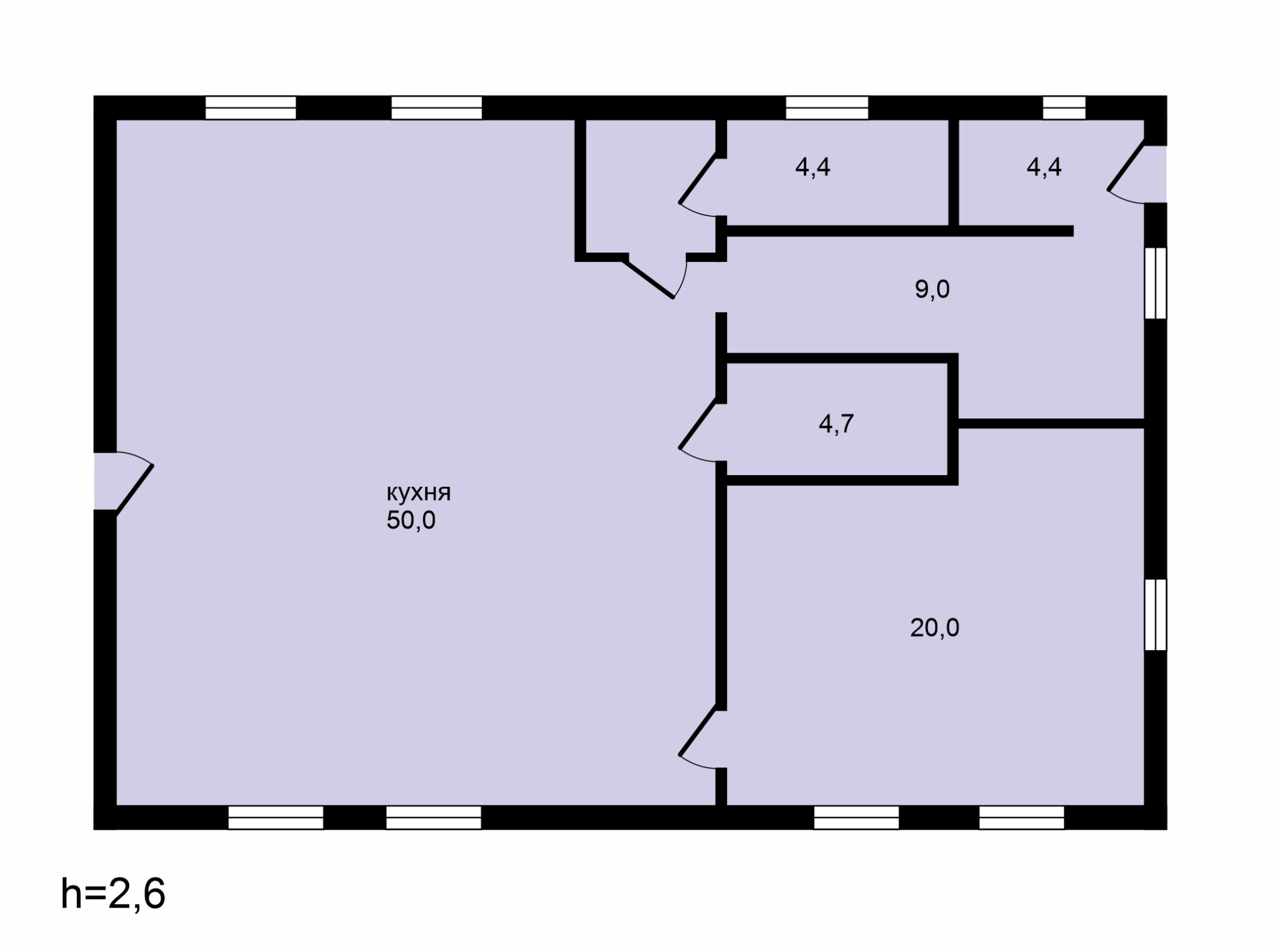
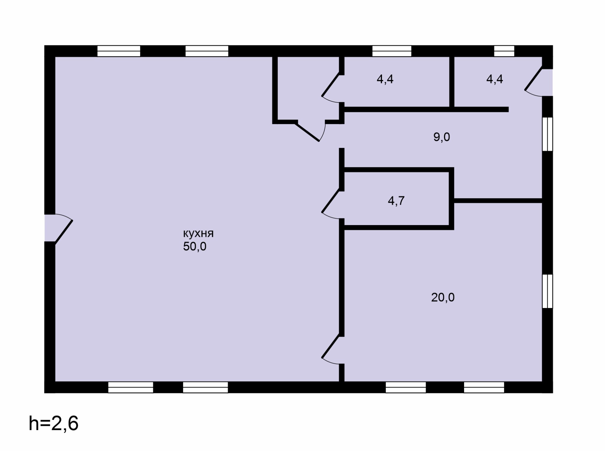
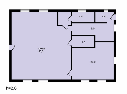
Планировка дома продумана до мелочей: две комнаты позволят каждому члену семьи найти своё пространство. Большая кухня-гостинная 50 кв м с печкой.

В 4 км от дома расположен горнолыжный комплекс Фристайл, зимой сможете заниматься горными лыжами и с детьми кататься на ватрушках.

Мы гарантируем безопасную сделку и юридическую поддержку нашим Клиентам. Поможем одобрить ипотеку с сниженной ставкой.

Общая информация
Количество комнат
2
Общая площадь
96 м2
Тип постройки
Газоблоки
Год постройки
2022
На карте
Покупаете в ипотеку?
Узнайте ежемесячный платеж в самых надежных банках
Рассчитать ипотеку
Похожие объекты
Мы подобрали варианты, которые могут вам понравиться
По параметрам
Рядом
По цене